Skip To Content

1865 Chandolin Lane

Elgin, IL 60124
  • $769,760
  • STATUS: Active
  • ON SITE: 12 Days
  • MLS #: 12556065
UPDATED: 69 min ago
$769,760
  • 4
    BEDS
  • N/A
    ACRES
  • 4
    BATHS
  • 0
    1/2 BATHS
  • 3,876
    SQFT
  • $199
    $/SQFT
Neighborhood:
Type:
Single-Family Home
Built:
2025
County:
Area:

School Information

Elementary School:
Middle School:
School District:
303

Description

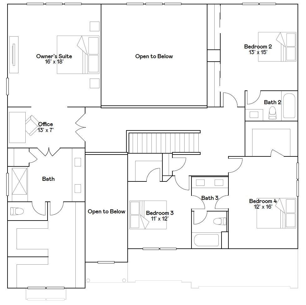
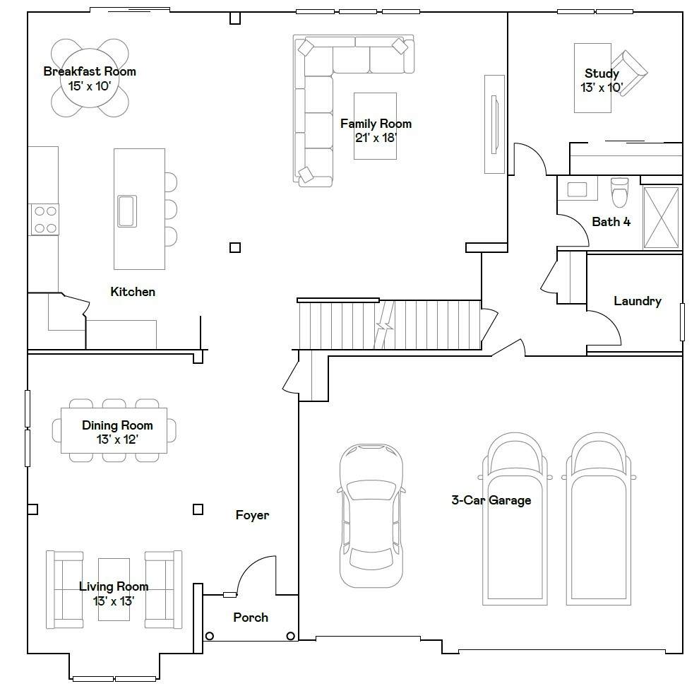
READY FOR FEBRUARY DELIVERY!! Homesite #0300 This new two-story home is the community's largest floorplan. The first floor features a living and dining room at the front of the home, an open design among the family room, designer-select options, gourmet kitchen with GE Profile Double Oven, 36" cooktop, subway tile backsplash, soft-close cabinetry and drawers throughout and 36" vent hood and breakfast room and a secluded study. Upstairs, three secondary bedrooms and an owner's suite with a home office and a giant walk-in closet provide tranquil havens for family members. *Photos are not this actual home* Ponds of Stony Creek is a welcoming community of new single-family homes in Elgin, IL, offering the perfect blend of comfort, convenience, and outdoor fun. Designed with families in mind, this community boasts fantastic onsite amenities, including a splash park, tot lot, picnic area, and scenic multi-use trails that wind through natural surroundings. Just a short drive away, downtown Elgin offers even more to explore. Situated along the Fox River, it features charming historic architecture, diverse shops and restaurants, and the popular Elgin Riverwalk-a local favorite for leisurely strolls and riverside views. Enjoy year-round entertainment with festivals, events, and exciting attractions like the Grand Victoria Casino. At Ponds of Stony Creek, every day brings new opportunities for recreation, relaxation, and connection in a community you'll love to call home.

Monthly Payment Calculator



© 2026 Midwest Real Estate Data LLC. All rights reserved. IDX information is provided exclusively for consumers' personal, non-commercial use and may not be used for any purpose other than to identify prospective properties consumers may be interested in purchasing. Information is deemed reliable but is not guaranteed accurate by MTP, MRED or Keller Williams Realty. Based on information submitted to the MRED as of 2026-02-09T15:17:54.1 UTC. All data is obtained from various sources and has not been, and will not be, verified by broker or MRED. MRED supplied Open House information is subject to change without notice. All information should be independently reviewed and verified for accuracy. Properties may or may not be listed by the office/agent presenting the information. Some properties which appear for sale on this website may subsequently have sold and may no longer be available. NOTICE: Many homes contain recording devices, and buyers should be aware they may be recorded during a showing.

Digital Millennium Copyright Act
www.bloomingtonareahomes.com/homes/172510912
Print Image

1865 Chandolin Lane Elgin, IL 60124

  • Price: $769,760
  • Status: Active
  • On Site: 12 Days
  • Updated: 69 min ago
  • MLS #: 12556065
4
Beds
4
Baths
0
½ Baths
N/A
Acres
3,876
SQFT
$199
$/SQFT
2025
Built
Neighborhood:
Ponds Of Stony Creek
County:
Kane
Area:
Kane
Elementary School:
Ferson Creek Elementary School
Middle School:
Thompson Middle School
High School:
St Charles North High School
School District:
303
Property Description
READY FOR FEBRUARY DELIVERY!! Homesite #0300 This new two-story home is the community's largest floorplan. The first floor features a living and dining room at the front of the home, an open design among the family room, designer-select options, gourmet kitchen with GE Profile Double Oven, 36" cooktop, subway tile backsplash, soft-close cabinetry and drawers throughout and 36" vent hood and breakfast room and a secluded study. Upstairs, three secondary bedrooms and an owner's suite with a home office and a giant walk-in closet provide tranquil havens for family members. *Photos are not this actual home* Ponds of Stony Creek is a welcoming community of new single-family homes in Elgin, IL, offering the perfect blend of comfort, convenience, and outdoor fun. Designed with families in mind, this community boasts fantastic onsite amenities, including a splash park, tot lot, picnic area, and scenic multi-use trails that wind through natural surroundings. Just a short drive away, downtown Elgin offers even more to explore. Situated along the Fox River, it features charming historic architecture, diverse shops and restaurants, and the popular Elgin Riverwalk-a local favorite for leisurely strolls and riverside views. Enjoy year-round entertainment with festivals, events, and exciting attractions like the Grand Victoria Casino. At Ponds of Stony Creek, every day brings new opportunities for recreation, relaxation, and connection in a community you'll love to call home.
Exterior Features

Lot Size .25-.49 Acre Parking Features AsphaltGarage Door OpenerYesGarage OwnedAttachedGarage Parking Total 3 Roof Asphalt Types 2 Stories Waterfront YN No

Interior Features

Appliances MicrowaveDishwasherDisposalStainless Steel Appliance(s)CooktopOvenRange Hood Approximate Finished Sq Ft 0 Basement Bathrooms YN No Basement Details UnfinishedFull Bedrooms Below Grade 0 Bedrooms Total 4 Cooling Central Air Heating Natural GasForced Air Room Type Breakfast RoomOfficeStudy Rooms Breakfast Room (Main) Office (Second) Study (Main) (N/A) (N/A) (N/A) (N/A) (N/A) (N/A) (N/A) Bedroom 2 (Second) Bedroom 3 (Second) Bedroom 4 (Second) Dining Room (Main) Family Room (Main) Kitchen (Main) Laundry (Main) Living Room (Main) Master Bedroom (Second) Rooms Total 11 Total Sq Ft 0 Unfinished Sqft 0

Property Features

Age NEW Under Construction Association Fee 500 Association Fee Frequency Annually Association Fee Includes Insurance Built Before1978 YN No Community Features ParkCurbsSidewalksStreet LightsStreet Paved Corporate Limits Elgin Disability Access And Or Equipped No General Information School Bus Service Master Association Fee Frequency Not Required Master Association Fee YN No Mls Actual Status Active New Construction YN Yes Ownership Fee Simple w/ HO Assn. Rebuilt YN No Sewer Public Sewer Special Listing Conditions Home Warranty Tax Year 2023 Township Campton Type Detached Single Water Source Public

Listing information © 2026 Midwest Real Estate Data LLC.
Listing provided courtesy of HomeSmart Connect LLC: 847-495-5000.


© 2026 Midwest Real Estate Data LLC. All rights reserved. IDX information is provided exclusively for consumers' personal, non-commercial use and may not be used for any purpose other than to identify prospective properties consumers may be interested in purchasing. Information is deemed reliable but is not guaranteed accurate by MTP, MRED or Keller Williams Realty. Based on information submitted to the MRED as of 2026-02-09T15:17:54.1 UTC. All data is obtained from various sources and has not been, and will not be, verified by broker or MRED. MRED supplied Open House information is subject to change without notice. All information should be independently reviewed and verified for accuracy. Properties may or may not be listed by the office/agent presenting the information. Some properties which appear for sale on this website may subsequently have sold and may no longer be available. NOTICE: Many homes contain recording devices, and buyers should be aware they may be recorded during a showing.

Digital Millennium Copyright Act
 
https://bt-photos.global.ssl.fastly.net/mred/orig_boomver_1_12556065-1.jpg https://bt-photos.global.ssl.fastly.net/mred/orig_boomver_1_12556065-1.jpg https://bt-photos.global.ssl.fastly.net/mred/orig_boomver_1_12556065-1.jpg
Logo
Keller Williams Realty
2401 East Empire
Bloomington IL, 61704